Pataskala, OH (Columbus MSA) | Summer 2025

My capstone assignment: take a swing at a development deal.
I talked to each market officer and built a scoring matrix.
Population growth, job growth, reindustrialization activity, manufacturing workforce, logistics reach — Columbus ranked highest across the board.

#1 Ranking
#1 Ranking
Anduril, Intel, Honda/LG
Legacy industrial base
46% of U.S. population in 1 day
Everyone was looking at the Smile States — Texas, Georgia, Florida.
I was looking for fundamentals and a supply/demand imbalance. Columbus checked both boxes.
Licking County vacancy in modern bulk
Etna Township (A growing logistics hub) had zero available buildings over 100,000 SF.

I spent days analyzing each Columbus submarket supply and demand factors. I talked to brokers. I talked to our market officer.
Etna made perfect sense: a growing large-user demand (from I-70) and positioned to capture overflow from New Albany's datacenter boom, just 15 minutes north.
Row-crop farmland within Corporate Park, giving tax abatement
Planned Manufacturing
To full I-70 interchange

A third-generation farmer who had recently inherited the farm from his grandfather.
I found Kyle's phone number through public records and cold called him.
He'd recently inherited the farm and was open to offers — looking to get out of the farming business.
Off-market. Through direct outreach. That's how this deal came together.

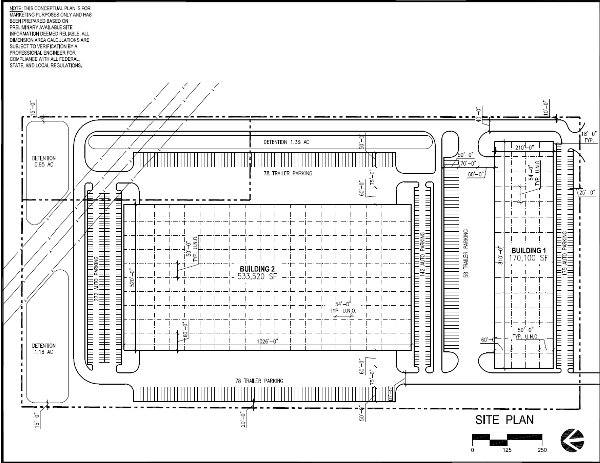
Speculative small-bay rear-load for supply-chain tenants
Built for large logistics users – efficient cross-dock
Competing Development

Lease Comps

Land Sale Comps

Land basis
$7.80 PSF
Rent comps
$6.98 PSF blended
Hard costs
$68–72 PSF
Sewer
Confirmed costs with water district
Impact fees
Confirmed directly with city planner
Result: 7.80% YOC on $89.56 total cost PSF
We typically target a 125 BPS spread on exit cap for this risk profile. This deal hit a 155 BPS spread.
The money is made on the buy. Nail the land basis, and the rest follows.

$6.98 rent + 6.25% cap
$6.48 rent + 6.75% cap
Still delivers positive IRR
I wrote and submitted the LOI to the land owner on the day of my pitch to IC.
The deal is being actively pursued and terms are being negotiated.
Check out other work I've built, from AI-powered tools to energy economics analysis.
Want to learn more about this project or discuss opportunities?
← Back to Portfolio